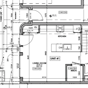
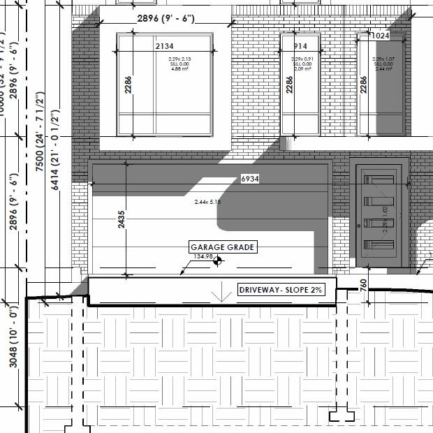
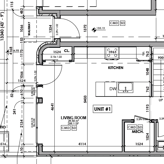
We developed the design for a fourplex in North York, complemented by a garden suite to optimize the site’s residential potential. Our scope included navigating zoning review, preparing the building permit submission, and producing a complete set of coordinated architectural and structural construction drawings. We also worked with consulting teams to ensure alignment with CMHC MLI Select program criteria.








