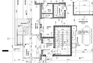
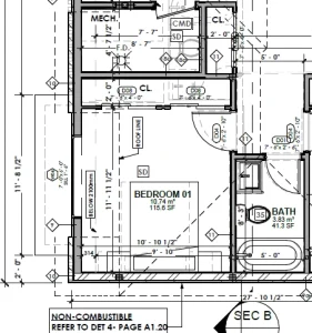
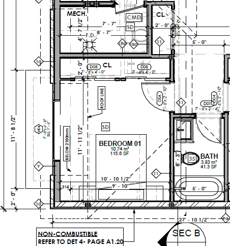
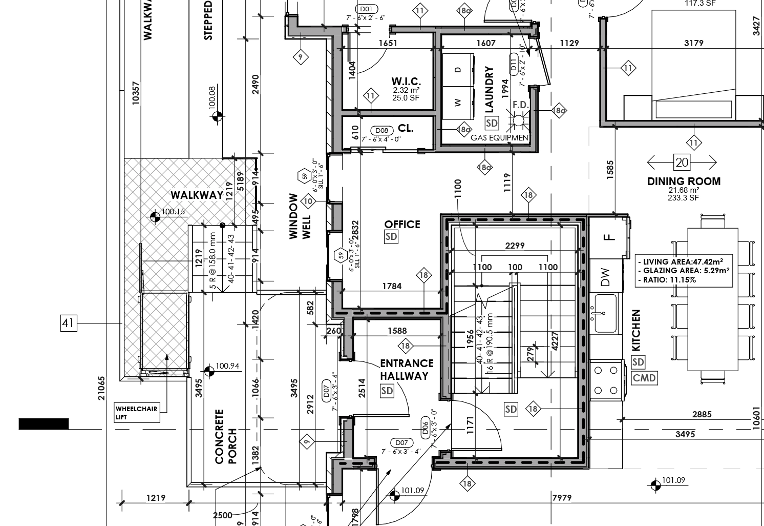
In this project, we delivered fourplex design in Scarborough along with a complementary garden suite. Our team guided the development through zoning review and the building permit process, preparing complete construction drawings and providing a full architectural and structural design package. We also coordinated with consultants to meet CMHC MLI Select requirements.









