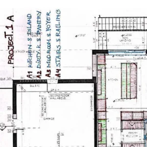
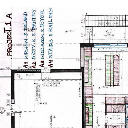
This project involves a renovation and addition on the Bridle Path in Toronto. Our team managed the full approvals process, including Committee of Adjustment and building permit applications, along with obtaining the necessary TRCA and Ravine approvals due to the site’s sensitive location. The project also includes a comprehensive interior design scope, which you can explore here.












