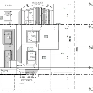
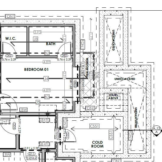
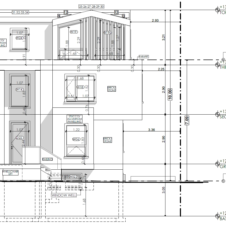
We designed a multiplex in Scarborough, along with a complementary garden suite as part of a broader residential infill strategy. Our team managed the zoning review and building permit process, preparing comprehensive construction drawings and delivering a coordinated architectural and structural design package. We also collaborated with consultants to meet CMHC MLI Select program requirements.














