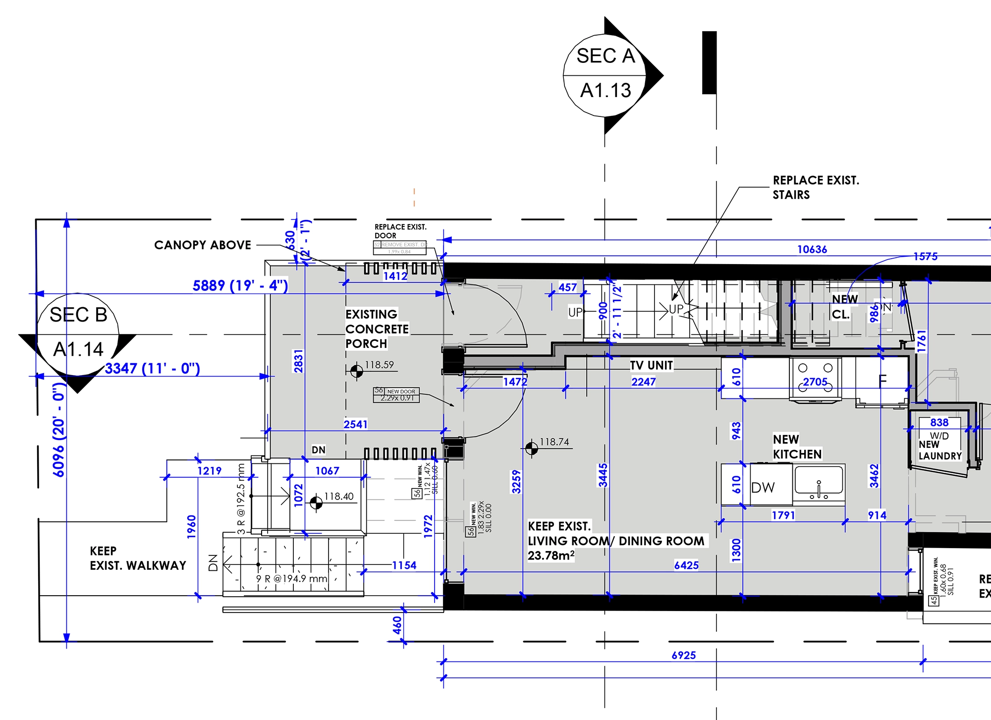
In this project, we converted a two-storey single-family dwelling on Dufferin Street into a fourplex and a laneway suite by adding a third floor and a rear addition.
Fourplex + Lanneway Suite
Toronto, ON
In Progress
2025
Fourplex + Lanneway Suite
Toronto, ON
In Progress
2025
In this project, we converted a two-storey single-family dwelling on Dufferin Street into a fourplex and a laneway suite by adding a third floor and a rear addition.