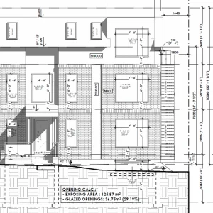
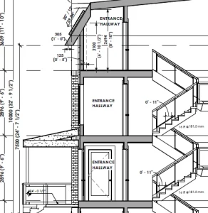
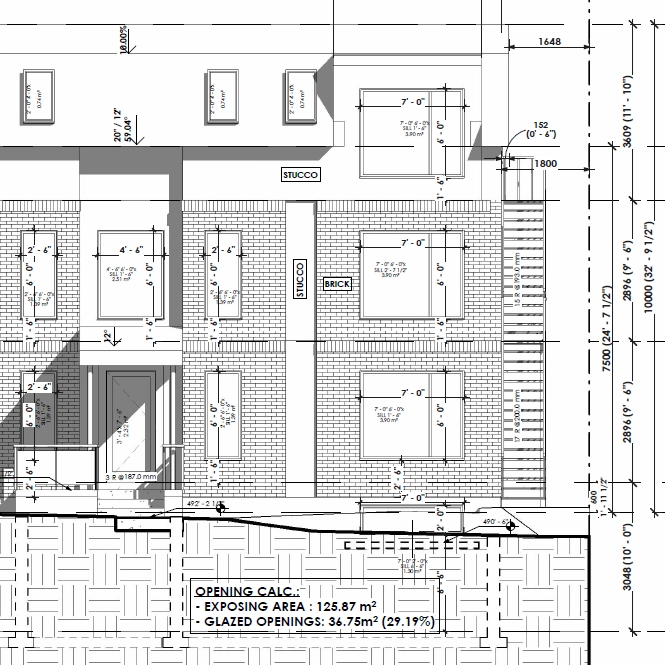
We provided fourplex design in North York, along with a secondary garden suite as part of a comprehensive residential infill project. Our team managed the zoning review and building permit process, producing complete construction drawings and delivering coordinated architectural and structural design packages. We also collaborated with consultants to support CMHC MLI Select program requirements.



